|168网
|168网
服务中心
工程案例
风机技术
新闻中心
新闻资讯
行业新闻
产品中心
离心风机系列
混轴流、斜流系列
屋顶风机系列
其他风机
配套附件
走进上专
公司简介
企业文化
设备展示
网站首页
1
2
3
您的当前位置是:
网站首页
> 产品中心 >
其他风机
> 4-72、79、68一般用途离心风机
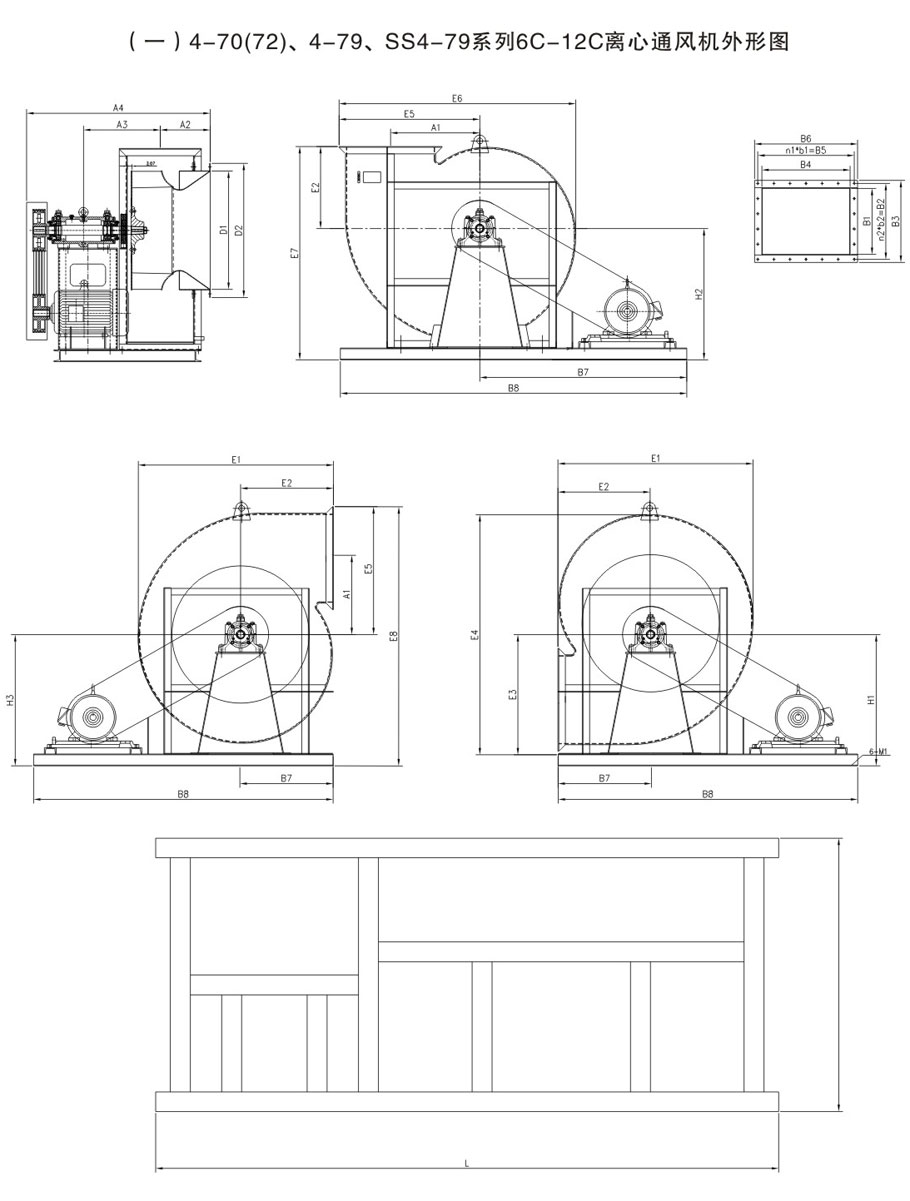
4-72、79、68一般用途离心风机
产品列表
PRODUCTS LIST
+ 离心风机系列
- HTFC系列柜式离心风机
- HTFC-V系列柜式离心风机
- DBF系列高效低噪柜式离心风机
- GDF离心式管道风机
- DPT静音管道风机
- YDF系列喷流诱导风机
+ 混轴流、斜流系列
- HTF系列消防高温排烟风机
- SZF系列高效节能混(轴)流风机
- SWF、HL3-2A系列高效节能混(轴)流风机
- PYHL-14A(HTF-B)轴流式消防排烟风机
- GXF系列斜流风机
- SJG系列斜流风机
- DTF系列可变翼轴流风机
- HTF-D系列轴流式消防排烟风机
- DZ系列轴流风机
- CDZ系列超低噪声轴流风机
- T35(40)-11系列新型轴流风机
- XBDZ(DWEX)系列方形壁式轴流风机
+ 屋顶风机系列
- DWT-I系列屋顶式消防(通风)两用轴流风机
- DWT系列离心式屋顶风机
- RAF(RTC)系列全铝制屋顶风机
+ 其他风机
- 4-72、79、68一般用途离心风机
- 9-19、26中高压离心风机
- 换气扇(排气扇)系列
- SDS隧道式射流风机
+ 配套附件
- 风阀、消声、风口系列
+ 风机使用、维护、保养说明
- 风机使用、维护、保养说明
Copyright © |168网 版权所有
浙ICP备84065740号-1
浙公网安备 33060402000268号
时时彩4月第五名走势
极速赛车今天第三名开奖记录
PK101月第五名走势
极速赛车号码分布
六合彩1月开奖结果
|168网